Retour Province de la ChampagneRetour Recherche par régionRetour accueilRetour Recherche par type d'édifice 
Etat avant la reconstruction du clocher en 1982
Les travaux de reconstruction de 1941
Une gravure ancienne
Quelques têtes
Clefs de voûtes déposées
Clefs de voûtes
Chair à prêcher et confessionnal
Fonts baptismaux
Côté nord de la nef
Bas-côté sud
Saint Pierre
Saint Paul
Couverture de la nef
Vue d'ensemble vers le choeur
L'intérieur
L'extérieur
Photo Géoportail
Plan Openstreet Map
Plan ViaMichelin
L'actuelle église paroissiale Saint-Rémy est l'ancienne abbatiale de l'abbaye bénédictine fondée en 673 par saint Berchaire sur des terres données par le roi Childéric II. A la Révolution, l'ancienne église paroissiale de Montier-en-Der, du vocable de Saint-Rémy, fut détruite. Les paroissiens retrouvèrent un lieu de culte dans l'abbatiale inoccupée qui était alors dédiée à Notre-Dame et où ils continuèrent à célébrer leur ancien patron, saint Rémy.
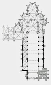
L'abbé Adson (960-982) entreprit la reconstruction de l'église qui fut consacrée en 998 (il en subsiste les grandes arcades de la nef).
Au cours de la 1ère moitié du 11ème siècle, on dota la nef de tribunes et d'un massif antérieur à tours et à la fin 12e on édifia le choeur et la tour de façade qui furent probablement achevés aux alentours de 1200.
Au 14ème siècle, l'abbé Ferry éleva la chapelle des fonts au nord du choeur. Au début du 16e siècle, l'abbé commendataire François de Dinteville modifia la partie antérieure de l'église (reconstruction de la façade et destruction de sa tour septentrionale) et remplaça les charpentes des tribunes par des voûtes.
Une transaction fut passée le 6 février 1556 entre le cardinal Charles de Lorraine, archevêque de Reims et abbé commendataire, et Girard de Hault, procureur des habitants dépendants de l'abbaye pour que ces derniers effectuent 600 charrois pour la réparation de l'église (réfection des flèches des deux clochers de l'abbaye et de leur couverture en ardoise), d'autres travaux comme la démolition des corps de logis en bois de l'abbaye (maisons abbatiales, trésorerie, chantrerie, aumônerie, étables, prévôté) et pour reconstruire le mur de clôture de l'abbaye avec quatre tours à canonnière, un pont-levis et une herse à l'entrée.
En 1773, les bâtiments abbatiaux furent reconstruits puis transformés en haras en 1811 et enfin rasés en 1860.
Sous l'impulsion de Prosper Mérimée, le choeur, la chapelle axiale et le déambulatoire furent restaurés par Emile Boeswillwald entre 1851-1855 et 1860-1863. Son fils, Paul-Louis Boeswillwald, reconstruisit la charpente de la nef, brûlée par un incendie en 1893, et les parties supérieures du clocher entre 1896 et 1901.
L'édifice fut bombardé et incendié le 14 juin 1940 ce qui entraîna un grand chantier de restauration dès 1941 et la reconstruction quasi-totale de la nef sous la direction de Jacques Laurent, architecte en chef des Monuments Historiques. Cette phase de travaux s'acheva au milieu des années 1950 mais la flèche de la tour ne fut posée qu'en 1982 en suivant les plans de Jean-Baptiste Bouchardon qui l'avait construite au 18ème siècle.
Montier-en-Der
Eglise Saint-Remy
Abbatiale Saint-Pierre et Saint-Paul